Shigeru Ban Architects| Aspen Art Museum▼设计说明►2007年,AAM委任的建筑师遴选委员会(其中包括ASC椅子上受托人AAM董事会秘书,已故的Frances Dittmer; 2006年AAM董事会主席Nancy Magoon和AAM董事会成员Larry Marx 和Gayle Stoffel;及AAM全国委员会成员Stefan T. Edlis 和 Diane Halle),一致选定坂茂(坂茂建筑师)项目。►In 2007, the AAM appointed an Architect Selection Committee (which included ASC chair and then-acting Secretary of AAM Board of Trustees, the late Frances Dittmer; 2007 AAM Board of Trustees President Nancy Magoon and AAM Board members Larry Marx and Gayle Stoffel; and AAM National Council members Stefan T. Edlis and Diane Halle), who unanimously selected Shigeru Ban (Shigeru Ban Architects) for the project.
►由普利兹克建筑奖获奖者坂茂(Shigeru Ban)设计的美国阿斯彭艺术博物馆(Aspen Art Museum)于8月9日正式对外开放,目前,该博物馆完工的图片已经对外放出。在新建筑修建期间,这座博物馆目前的场馆还将继续运营。近期该博物馆正在进行一系列大型活动,以纪念项目的竣工,最近刚刚举行过的盛大的剪彩仪式,邀请了许多著名的建筑师到场出席。►From the architect. Located on the corner of South Spring Street and East Hyman Avenue in Aspen’s downtown core, the new AAM is Shigeru Ban’s first permanent U.S. museum to be constructed. Ban’s vision for the new AAM is based on transparency and open view planes—inviting those outside to engage with the building’s interior, and providing those inside the opportunity to see their exterior surroundings.
►博物馆位于美国科罗拉多州阿斯彭小镇(Aspen)的核心地带,内含各种各样展览区域,雕塑园,教室,书店、博物馆商店,咖啡厅,办公空间和艺术品存储室等。场馆外墙是由木栅栏编织的可渗透进自然光照的外围幕墙与一层玻璃建造。►From the roof-deck sculpture garden, visitors will enjoy unparalleled vistas of Aspen’s environment and the only unobstructed public rooftop view of Ajax Mountain. The roof deck will also be an activated exhibition and event space featuring the café, So, a bar, and an outdoor screening space.
►该建筑内有17500平方英尺的画廊,相当于为各个组织提供了三倍于展览空间的区域面积。一座屋顶室外雕塑园与展示画廊相辅相成,由大面的落地玻璃推拉门隔开,当所有推拉门打开后,室内室外也能连成一体,让参观者也可以欣赏到附近的滑雪山的美景,使得参观空间更加广阔。► The main entrance is located on the north side of the building along East Hyman Avenue, which allows access to the reception area and two ground-floor galleries. From there, visitors may choose their path through museum spaces—ascending to upper levels either via Ban’s Moving Room glass elevator in the northeast corner, or the Grand Stair on the east side. The Grand Stair—a three-level passageway between the building’s woven exterior screen and its interior structure—is intersected by a glass wall dividing it into a ten-foot-wide exterior space and a six-foot-wide interior space. The unique passage allows for the natural blending of outdoor and indoor spaces, and will also feature mobile pedestals for exhibiting art. The exterior Woven Wood Screen is made of the composite material Prodema—an amalgam of paper and resin encased within a dual-sided wood veneer.
►在评价设计新的阿斯彭艺术博物馆的过程的时候,建筑设计师坂茂(shigeru ban)说道:“我在设计该项目的时候结合了附近的雪山美景与建筑的用途,考虑到一个参观者的游览顺序问题,并将此作为我设计中的主要理念。” 坂茂希望新的博物馆基于开放透明的理念,让建筑的外部风景与内部空间相互交融贯通。►Other new AAM amenities include an education space, the AAM shop/bookstore, and an on-site artist apartment, as well as art storage and preparation spaces. The AAM Shop is collaborating with New York’s iconic nonprofit art bookseller Printed Matter to feature artist-produced titles alongside its own AAM imprint publications, as well as featuring a number of unique and collectible artist-edition offerings.
►近年来,在AMA每年出勤增加了110%,其工作人员增加了两倍,而且该机构已经看到学生增长了1,140%送达博物馆教育节目扶摇直上的数量。一种用于其设施和搬迁的AAM-扩大到中心城区已久的战略目标,成为市中心,已成为必然。►In recent years, the AMA’s annual attendance has increased by 110%, its staff tripled, and the institution has seen the number of students served by museum educational programming skyrocket with a 1,140% increase. A long standing strategic goal for the AAM—the expansion of its facility and relocation to the downtown Aspen core—became a necessity.
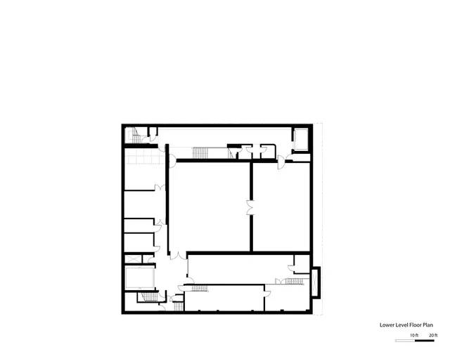
Shigeru Ban Architects| Aspen Art Museum▼设计图纸
Shigeru Ban Architects| Aspen Art Museum▼项目概况建筑设计|Shigeru Ban Architects 位 置|637 East Hyman Avenue, Aspen, CO 81611, USA面 积|33000.0 ft2完成时间|2014照片版权| Michael Moran / OTTO, Derek Skalko Shigeru Ban Architects| Aspen Art Museum▼设计师简介
►1998年,Nobutaka Higara成为坂茂东京业务机构的合伙人。►2004年,坂茂与让· 德· 贾斯丁内斯(自2004年起担任他巴黎业务机构合伙人)和菲利普·古姆齐德简合作,在蓬皮杜梅斯中心的竞标中胜出。他集合了自己在日本和欧洲学生,在位于巴黎蓬皮杜中心的顶层露台上搭建了纸管结构的临时办公室。►坂茂一直担任庆应义塾大学环境和信息研究学院教授。他赢得了蓬皮杜梅斯中心项目竞标后,与合伙人让·德·贾斯丁内斯联手成立了一家私人事务所。2008年,他从庆应义塾大学辞职,并于2010年在哈佛大学和康奈尔大学担任客座教授。2011年,他又成为京都艺术与设计大学的教授。►坂茂目前正在研究创意结构,参加志愿救灾、广泛讲学、在校任教,并继续开发材料和结构系统。这项工作不仅催生了纸管结构,还有层压竹子(竹家具宅,2002年)、海运集装箱结构系统(游牧博物馆:纽约,2005年;圣莫尼卡,2006年;东京,2007年;女川集装箱临时房屋,2011年)以及无金属连接件木结构(蓬皮杜梅斯中心,2010年;赫斯利九桥高尔夫球俱乐部,2010年;Tamedia新办公楼,2013年;阿斯彭艺术博物馆,2014年)。此外,他还利用碳纤维创造了家具和建筑(碳纤维椅,2009年;里特贝格博物馆夏季馆,2013年)。编辑 /Kelly(北京) 供稿 /Shigeru Ban Architects| |
成为第一个评论的人
-
2015-11-24
-
2015-11-24
-
2015-11-24
-
2015-11-24
-
2015-11-24
►由普利兹克建筑奖获奖者坂茂(Shigeru Ban)设计的美国阿斯彭艺术博物馆(Aspen Art Museum)于8月9日正式对外开放,目前,该博物馆完工的图片已经对外放出。在新建筑修建期间,这座博物馆目前的场馆还将继续运营。近期该博物馆正在进行一系列大型活动,以纪念项目的竣工,最近刚刚举行过的盛大的剪彩仪式,邀请了许多著名的建筑师到场出席。
►博物馆位于美国科罗拉多州阿斯彭小镇(Aspen)的核心地带,内含各种各样展览区域,雕塑园,教室,书店、博物馆商店,咖啡厅,办公空间和艺术品存储室等。场馆外墙是由木栅栏编织的可渗透进自然光照的外围幕墙与一层玻璃建造。
►该建筑内有17500平方英尺的画廊,相当于为各个组织提供了三倍于展览空间的区域面积。一座屋顶室外雕塑园与展示画廊相辅相成,由大面的落地玻璃推拉门隔开,当所有推拉门打开后,室内室外也能连成一体,让参观者也可以欣赏到附近的滑雪山的美景,使得参观空间更加广阔。
►近年来,在AMA每年出勤增加了110%,其工作人员增加了两倍,而且该机构已经看到学生增长了1,140%送达博物馆教育节目扶摇直上的数量。一种用于其设施和搬迁的AAM-扩大到中心城区已久的战略目标,成为市中心,已成为必然。►In recent years, the AMA’s annual attendance has increased by 110%, its staff tripled, and the institution has seen the number of students served by museum educational programming skyrocket with a 1,140% increase. A long standing strategic goal for the AAM—the expansion of its facility and relocation to the downtown Aspen core—became a necessity.
Shigeru Ban Architects| Aspen Art Museum▼设计图纸
