在新西兰旺格普阿(Whangapoua)的白沙湾海岸,栖息着一座形态优雅的木质小屋。小屋占地仅40平米,可供五口之家在此度假休闲。其朝向大海一面的木质遮阳蓬可以折叠,关闭的遮阳棚宛如一座木质碉堡。碉堡小屋被架在两条巨型的木质雪橇上,木质雪橇成为小屋的固定基座,方便业主在度假结束时撤离沙滩。
就是这样的看似简朴的迷你小屋在全球接连夺得10座建筑设计类奖项,被大量设计杂志报道。在2014年,其还赢得了Architizer A+颁发的最佳小住宅勋章。Architizer作为一家一世界建筑数据类公司,在全球具有极高的影响力,其举办的Architizer A+ Awards被誉为“建筑界的奥斯卡”。不仅建筑整体设计获奖无数,其建筑中的淋浴间设计甚至单独赢得了2012年澳大利亚的Urbis的最佳浴室称号。 你一定不禁会问,为何是这座四四方方的小屋在芸芸众生中脱颖而出,得到各方赞誉?事实上,这样一座形态规整的小屋,倾注了建筑师大量心血。其最为人们所赞誉的特色,正是建筑师Crosson在设计之初所面临的前所未有的挑战。接下来,让我们一起探索一下这座小屋的魅力。 可移动的小屋 小屋所在的地点位处新西兰的旅游胜地旺格普阿,此地虽然风景优美,但地处海岸侵蚀地带。所谓“海岸侵蚀”,意思是海岸线会因海水的冲刷而后退以及下沉。这样的地貌不适宜建造固定建筑,所以沙滩边上的小屋都必须是可移动的。 富有想象力的建筑师并没有被此难道,Crosson想出了将小屋架在木质雪橇上的解决方案。这样,在撤离沙滩时只需上一辆托运卡车,将这座雪橇上的小屋固定好位置,便能轻松将小屋开走。
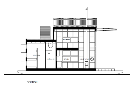
容纳一家5口人 对于一般新西兰家庭来说,平均的居住面积在150平米左右,而这座小屋却只能是40平米。面积小点也罢,而偏偏业主是一拥有三个孩子的5口之家。于是,居住人口与房屋尺寸的矛盾就极其显著。 为了解决这一难题,设计师先是将建筑提高至了局部2层楼的高度,并在2楼顶上设有露台。一层靠海前端是起居室,同时带有一个开放式厨房。中间是洗浴空间,最后是三位儿童的卧室。在起居室与洗浴空间的连接靠墙处是通往二层大人卧室的竖直梯子。从二层的大人卧室可以直接看到一层的起居空间。沿着梯子在往上爬,便可到达三层露台。在此一家五口可以休憩,欣赏自然,瞭望远方。
起居室,厨房以及二层卧室
通往二楼及顶层的梯子 虽然是一度假住宅,五口之家还是需要储物空间。在小屋里,建筑室内得以充分利用。建筑师借助起居室的墙壁结构,搭建了置物架,可以用作存放全家的假日记忆:书籍、贝壳以及其他装饰物。
置物架 儿童卧室被设计成了三层床铺,同时每个床铺边上都有一个与外界连通的小窗,左侧还有儿童的储物空间。
儿童卧室 折叠木板与落地玻璃 小屋在面向大海的一面有一巨大的折叠木板,在木板里面则是一有两层楼高的玻璃门。夏季,太阳的直射角度较高,伸出的折叠木板通过调整角度,可以遮蔽直射的阳光。冬季,太阳的直射角度降低,阳光可以直射在二层楼高的玻璃门窗上。这时候玻璃既可以吸收阳光,同时还可以储藏热量。当然,贴心的建筑师也考虑到万一阳光热量不足的问题。在一层的起居室里,设计师放置了壁炉,以供取暖。
夏日与冬日的直射角度 此外巨大的落地玻璃与折叠木板也提供了广阔的视角给室内的住客。虽然身处起居室或是二楼卧室,你依然可以一览大海的壮阔,感受扑面而来的自然气息。
关闭的折叠木板
打开的折叠木板
窗外壮阔美景 在阳光中沐浴的体验 你一定不希望在海上冲浪结束的孩子抱着冲浪板,头上渗着海水,脚下粘有泥沙直接冲过起居室奔向淋浴房。这会毁了美丽的地毯并且让你从度假状态变成保姆状态。于是贴心的设计师在淋浴房边上单独设立了一扇移门,玩耍完的孩子们可以直接进入淋浴间沐浴清洗。
右侧的白色移门是淋浴间入口 贴心的设计并非仅此而已,这间浴室提供了两种与阳光共同沐浴的方式。你可以敞开淋浴间移门,在沐浴阳光中进行淋浴。你也可以将移门关闭,保持隐私,通过浴室上方的透光屏幕,同样保证你在沐浴的同时享受阳光的照射。这种别样体验难怪会让其收获最佳浴室的称号。
淋浴花洒 建筑与环境相协调 这位新西兰建筑师Crosson极其注重小屋与周围环境的关系。他认为“建筑结构与其所在地的对话是极其重要的”(It was important that the structure "talks" to its location.)他希望身处海滩边上的小屋,在形态上可以犹如一座海上救援塔。这符合小屋地处海滩边上的环境特点。对于海上船只而言,小屋是海上极其易见的灯塔,并不突兀。对于住在其中的人来说,这就像是瞭望塔,可以瞭望无边无际的海洋。这顺应了环境,也满足了人们内心的需求,实现了建筑与自然的协调。
在屋顶眺望远方
小屋宛如救援塔 在建筑材料的选择上,他讲求经济环保。他就地取材,选用了周围小屋所常用的木质材料,最终实现了小屋与周围环境的融合,也践行了经济环保理念。
在地木材的选择 有人称赞说,这是一个小项目,却真真切切地抓住了人们的想象力。这座被称为灯塔、碉堡甚至是帐篷的移动小屋,以探索假日生活中最精要的组成为设计初衷,建设成为了一座体量小、结构简单、功能性极强的假日住宅。它反映了人类最为经典的日常生活组成,烹饪、餐饮、睡觉和洗浴。这让人们回归了生活的原点,提供了让人们与自然充分交流的机会。 也正因为如此,才让这座雪橇上的移动小屋收获了如此丰盛的设计奖项。这同时也反映了世界各地人们对回归生活原点的情感诉求。祝愿这样类似的小屋设计能越多越好。 |
成为第一个评论的人
-
2017-04-17
-
2017-04-17
-
2017-04-17
-
2017-04-17
-
2017-04-17
起居室,厨房以及二层卧室
