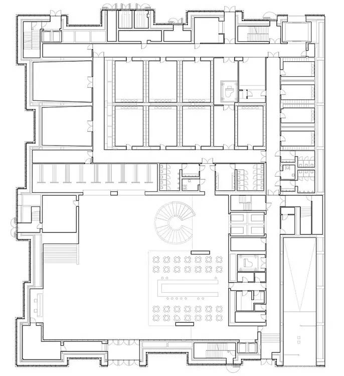
波兰老城新成员—什切青爱乐音乐厅位于在二战时被摧毁的老音乐厅位置之上,建筑内部主要包括一个1000席位的交响乐大厅,200席位的音乐厅,展览会议多功能空间以及宽敞可用于举办各种活动的门厅。
建筑三面有出入口,公共主要出入口位于南侧。音乐厅具有十分显眼和具有识别性的外观,白色的方形体量,顶部是抢眼的几何椎体群屋顶造型,以独特的方式呼应着老城市环境和绵延不绝的坡屋顶建筑。建筑的外表皮是乳白色的玻璃,夜幕时分,内部的光线从内向外渗出,建筑因此成为温馨的发光体。建筑内部交通空间简洁的将紧凑的功能区串联。交响乐大厅的内部装饰将折面体元素高差不一的平和,塑造出具有东欧古典音乐传统风韵,且同时美观并具有优良声乐环境的现代音乐音乐欣赏空间。
|
成为第一个评论的人
-
2017-04-17
-
2017-04-17
-
2017-04-17
-
2017-04-17
-
2017-04-17
波兰老城新成员—什切青爱乐音乐厅位于在二战时被摧毁的老音乐厅位置之上,建筑内部主要包括一个1000席位的交响乐大厅,200席位的音乐厅,展览会议多功能空间以及宽敞可用于举办各种活动的门厅。
建筑三面有出入口,公共主要出入口位于南侧。音乐厅具有十分显眼和具有识别性的外观,白色的方形体量,顶部是抢眼的几何椎体群屋顶造型,以独特的方式呼应着老城市环境和绵延不绝的坡屋顶建筑。建筑的外表皮是乳白色的玻璃,夜幕时分,内部的光线从内向外渗出,建筑因此成为温馨的发光体。建筑内部交通空间简洁的将紧凑的功能区串联。交响乐大厅的内部装饰将折面体元素高差不一的平和,塑造出具有东欧古典音乐传统风韵,且同时美观并具有优良声乐环境的现代音乐音乐欣赏空间。
