|
作者:杜健、吕律谱、段亮亮、胡智华供稿:卓越手绘教育机构本文已获得授权一、多画图 画好图 案例A
1、在处理一张画面的时候,我们首先先要确定画面的构图和需要刻画的主体。这张图的主体是建筑本身,但是同时把建筑周围的植物加以处理,可以使画面更加的丰富。在构图上选择了建筑中并不常见的一点斜透视,就是为了突出整体环境的效果。同学们还要注意图面上砖墙的处理,这种材质在建筑和园林中都很常见,处理的时候要注意大小的区分,不能每块石头都画的一边大,那样会比较死板。在处理这种草坪的时候,千万不要把整块草坪都密密麻麻的画上笔触,边缘和前面的部分多加一些,中间就可以留白出来,做到取舍有度。
2、上色开始,我们要选择画面中最确定的颜色。因为整张画面需要定色的物体很多,有时候我们不知道从何下手。甚至建筑体的墙面是用暖灰还是冷灰都没有确定。那么我们就从最确定的颜色,比如玻璃、木头。之所以不先上植物,是因为植物的颜色变化很多,用偏暖的绿色或者偏冷的绿色,都能画出很好的效果。
3、这个步骤,基本可以确定整张画面的颜色和想表达的氛围了,草地选择了大面积的48号马克笔的暖绿,是作者为了突出阳光明媚的感觉。包括水体,也是使用了67号马克笔这种比较偏暖的蓝色,也是同样的目的。所以说同学们看到这一步,基本可以感受到了这张图上满满的阳光。也映了中国那句古话“人不可貌相”。杜老师虽然长相狂野,但是内心还是充满着爱和阳光的。
4、大家注意这个步骤中处理左边的草地和植物的时候,杜老师选择了很冷很重的绿色。这样才能够使更好的衬托出画面其他的部分。不代表画面上一味的使用暖色,就能够让画面显得很亮。而是要有合理的对比。砖墙在处理色彩方面,也是加入了冷暖色的区分,并没有一味的试用偏黄偏红的暖色调。而水体,也加入了一些冷灰色,降低了它的纯度。这样人们自然而然的就会把视觉中心锁定的建筑体上。
5、最后,将画面的细节部分加以修饰和处理。比如草地、地板、植物等。在画面反光最强的地方加以提白。天空这张图选择的是简单处理手法,因为整张图画到这里,已经非常丰富了,如果天空再使用花哨、复杂的处理手法,会使整个画面显得过于凌乱。案例B
1、这张图在线稿处理上比较复杂。为了突出主体别墅是融入在整个自然森林中的感觉,所以主体建筑只在画面中占了很小的比重。那么其余大量秘籍的植物,才是这张图处理的重点和难点。杜老师采取了建筑周围植物密集,越往外越概括的处理手法。整张图可以说是用尽了手绘中对植物的表达方式,灌木、乔木、针叶类植以及热带植物,都在这里相互辉映。左上海滩的处理非常的巧妙,突出了别墅所处在的地理环境的优越。
2、这张图杜老师没有采用整体铺色,逐步细化的方式。而是从主体出发,一点点的完成画面。这需要对色彩有着极强的控制力。需要特意强调一下的是,在刻画主体建筑的时候,坡屋顶的光感要很好的强调。因为海边别墅,如果不营造出阳光明媚的感觉,是非常失败的。
3、同线稿一样,离主体越远的植物,我们越是概括的刻画。包括沙滩、海水都使用了很简单的色彩。重颜色的使用也逐渐减少。这张图所保持的就是,不论什么时候结束,都可以算是一张完整的图。
4、对周围的环境加以细节处理。在处理这么多的植物的时候,如何将它们区分开来是整张图最重点也是最难点的地方,大家注意观察,杜老师在处理这些植物的时候使用了大量的不同色相的绿色。从明度、色相、纯度、冷暖几个方面去区别。大家注意右上的使用灰色处理最边缘的植物,很巧妙的衬托出了其他的主体植物。而且这么多植物在处理的时候,还要将它们合理的分组,以组团的形式刻画。
5、最后,将整张画面具体完善。细节加以处理。二、 多看图 看好图
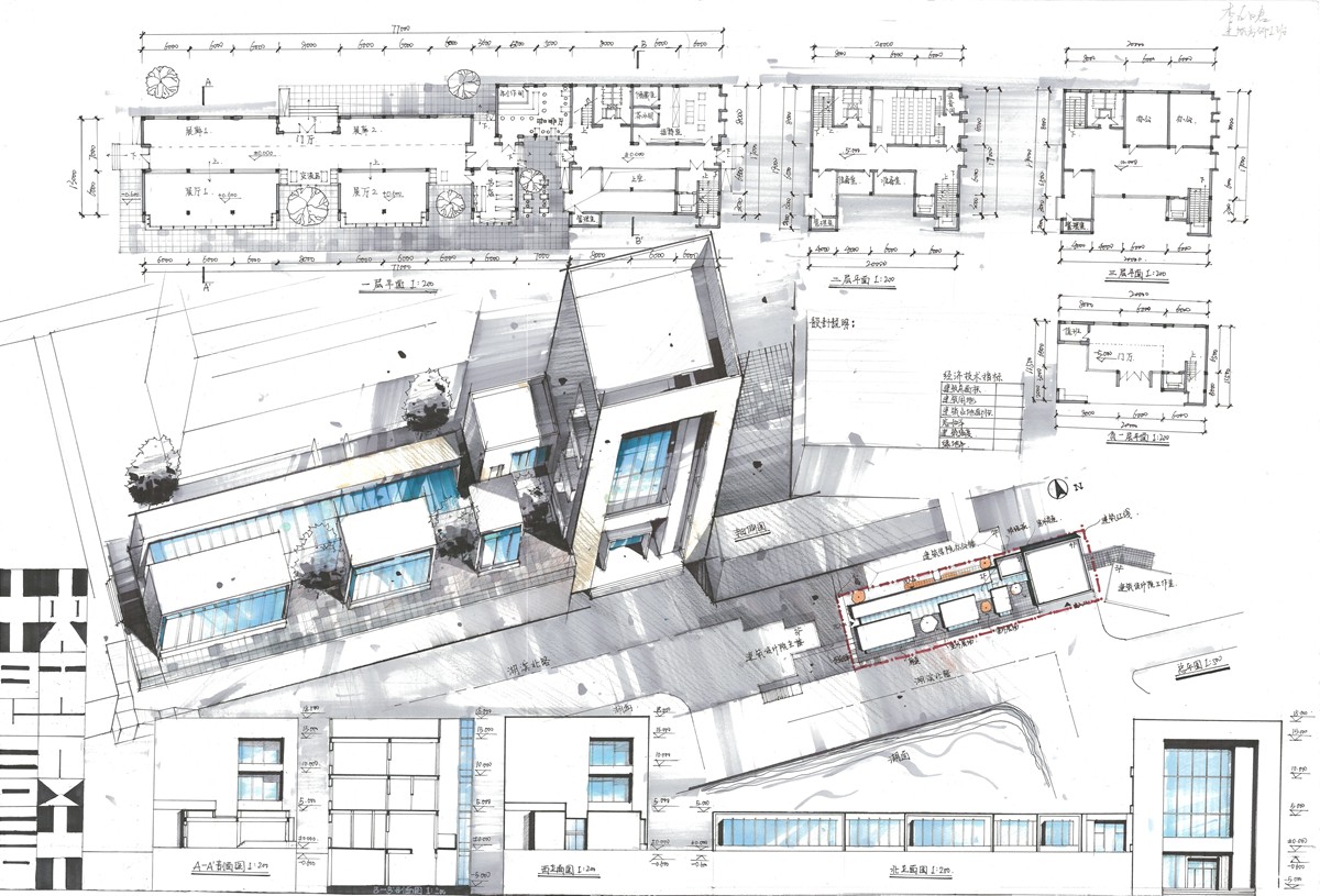
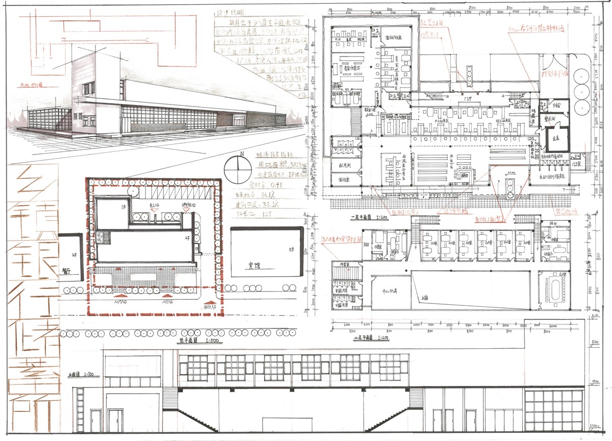
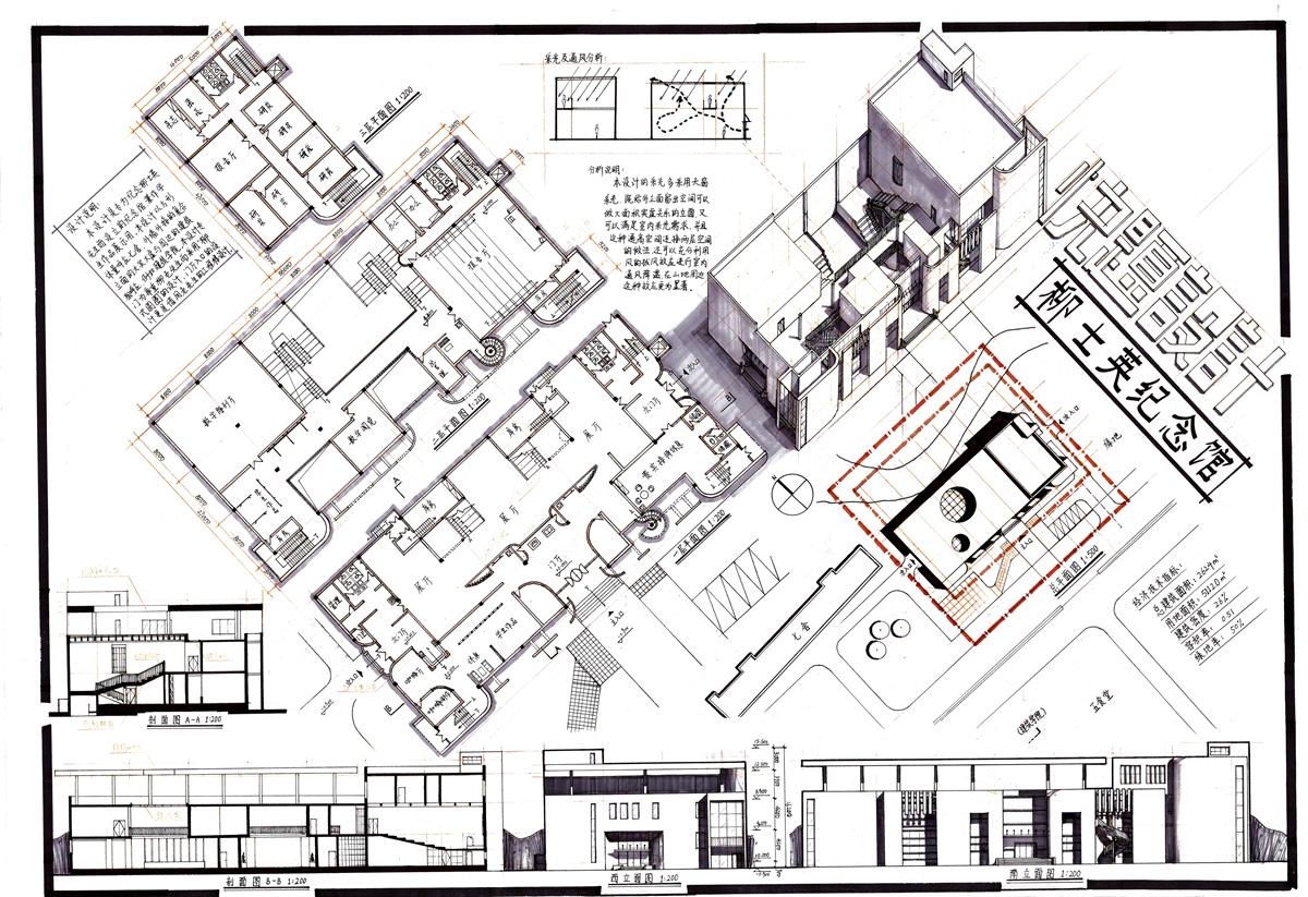
三、 多做设计 做好设计 A、建筑快题
B、城规快题
C、环艺快题
D、景观快题
E、室内快题
|
成为第一个评论的人
-
2017-04-17
-
2017-04-17
-
2017-04-17
-
2017-04-17
-
2017-04-17
1、在处理一张画面的时候,我们首先先要确定画面的构图和需要刻画的主体。这张图的主体是建筑本身,但是同时把建筑周围的植物加以处理,可以使画面更加的丰富。在构图上选择了建筑中并不常见的一点斜透视,就是为了突出整体环境的效果。同学们还要注意图面上砖墙的处理,这种材质在建筑和园林中都很常见,处理的时候要注意大小的区分,不能每块石头都画的一边大,那样会比较死板。在处理这种草坪的时候,千万不要把整块草坪都密密麻麻的画上笔触,边缘和前面的部分多加一些,中间就可以留白出来,做到取舍有度。
2、上色开始,我们要选择画面中最确定的颜色。因为整张画面需要定色的物体很多,有时候我们不知道从何下手。甚至建筑体的墙面是用暖灰还是冷灰都没有确定。那么我们就从最确定的颜色,比如玻璃、木头。之所以不先上植物,是因为植物的颜色变化很多,用偏暖的绿色或者偏冷的绿色,都能画出很好的效果。
3、这个步骤,基本可以确定整张画面的颜色和想表达的氛围了,草地选择了大面积的48号马克笔的暖绿,是作者为了突出阳光明媚的感觉。包括水体,也是使用了67号马克笔这种比较偏暖的蓝色,也是同样的目的。所以说同学们看到这一步,基本可以感受到了这张图上满满的阳光。也映了中国那句古话“人不可貌相”。杜老师虽然长相狂野,但是内心还是充满着爱和阳光的。
4、大家注意这个步骤中处理左边的草地和植物的时候,杜老师选择了很冷很重的绿色。这样才能够使更好的衬托出画面其他的部分。不代表画面上一味的使用暖色,就能够让画面显得很亮。而是要有合理的对比。砖墙在处理色彩方面,也是加入了冷暖色的区分,并没有一味的试用偏黄偏红的暖色调。而水体,也加入了一些冷灰色,降低了它的纯度。这样人们自然而然的就会把视觉中心锁定的建筑体上。
5、最后,将画面的细节部分加以修饰和处理。比如草地、地板、植物等。在画面反光最强的地方加以提白。天空这张图选择的是简单处理手法,因为整张图画到这里,已经非常丰富了,如果天空再使用花哨、复杂的处理手法,会使整个画面显得过于凌乱。
1、这张图在线稿处理上比较复杂。为了突出主体别墅是融入在整个自然森林中的感觉,所以主体建筑只在画面中占了很小的比重。那么其余大量秘籍的植物,才是这张图处理的重点和难点。杜老师采取了建筑周围植物密集,越往外越概括的处理手法。整张图可以说是用尽了手绘中对植物的表达方式,灌木、乔木、针叶类植以及热带植物,都在这里相互辉映。左上海滩的处理非常的巧妙,突出了别墅所处在的地理环境的优越。
2、这张图杜老师没有采用整体铺色,逐步细化的方式。而是从主体出发,一点点的完成画面。这需要对色彩有着极强的控制力。需要特意强调一下的是,在刻画主体建筑的时候,坡屋顶的光感要很好的强调。因为海边别墅,如果不营造出阳光明媚的感觉,是非常失败的。
3、同线稿一样,离主体越远的植物,我们越是概括的刻画。包括沙滩、海水都使用了很简单的色彩。重颜色的使用也逐渐减少。这张图所保持的就是,不论什么时候结束,都可以算是一张完整的图。
4、对周围的环境加以细节处理。在处理这么多的植物的时候,如何将它们区分开来是整张图最重点也是最难点的地方,大家注意观察,杜老师在处理这些植物的时候使用了大量的不同色相的绿色。从明度、色相、纯度、冷暖几个方面去区别。大家注意右上的使用灰色处理最边缘的植物,很巧妙的衬托出了其他的主体植物。而且这么多植物在处理的时候,还要将它们合理的分组,以组团的形式刻画。
5、最后,将整张画面具体完善。细节加以处理。
