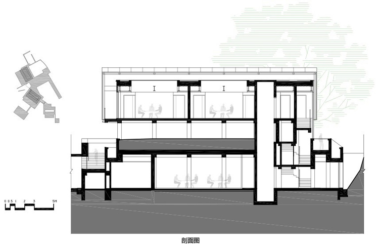
项目名称:远香湖公园叠翠山庄餐厅(Blooming Valley Restaurant,Yuanxiang Lake Park)建筑师:张斌、周蔚、致正建筑工作室 设计团队:李莹、李沁、金燕琳、王佳绮、曾鹏 合作设计:现代华盖建筑设计有限公司 项目地点:中国,上海嘉定 设计时间:2009年04月-2011年12月 项目时间:2010年10月-2012年12月 基地面积:16762㎡ 建筑面积:2627㎡ 叠翠山庄是一个可以容纳大型中餐设施的景观餐饮会所,坐落于远香湖区中心最大岛屿西侧的一块背靠人造小山丘的临水坡地上,东北面利用山丘和密林隔绝了相邻的城市干道的干扰,从而形成了面湖一侧的幽静环境。由于场地和建筑尺度都较大,为了呈现给湖对岸嘉定新城中心区一个优良的景观天际线,建筑师们的基本策略是将建筑体量化整为零,并与地形紧密结合。由滨湖方向看过来,由于所有的底层部分都嵌入山体,建筑仿佛生长在自然地貌之中,山坡之上只露出两个漂浮的轻盈小阁。所有厨房、机房和设备天井等后勤设施全部埋在山丘之下,后山挡土墙下配有沿路展开的带有混凝土挑檐的停车场。这一策略的核心是探讨场地上人的活动领域和水的关系。虽然建筑并不直接临水,但是使用者的身体体验始终离不开如何感受水与场地的关系这一主题。建筑师利用场地中建筑与景观的穿插互动,塑造了远近、高低、开合不同的亲水感受,并将对于湖面的体验带入整个场地的洄游路径之中。 在原来简单隆起的山丘西麓再造了一条布满开花植物的谷地,山谷中间是可以穿越整个场地的蜿蜒分岔的小径(Winding Path),南北两端与公园的舒缓地形自然相接。而建筑被分为大小不一的四组体量利用对景关系分布于山谷两侧。其中两组最大的体量都在山谷东侧嵌入山体面湖展开,各带有一个凌驾于坡地之上的高低错落的阁楼,它们之间自然形成一个被山坡覆盖的半开敞门厅。山谷中段门厅之前朝向西侧的湖面留出了一个从里到外逐次收小的开口,两侧护坡的反透视效果拉近了刻意收小的湖面视野与场地内部的距离。这一开口里的楔形低地里满布荷塘,中间凌波穿过一条分岔的栈道,从湖面方向将人引入门厅,或引向入口边的登山小径。 门厅入口也是一个外小内大的楔形空间,两道毛石墙限定了幽暗门厅内隔着荷塘看到湖面的外向视野。门厅两侧分别是大宴会厅和小包房区,它们面湖一侧都是遮挡了正面视野的山谷西面的护坡,只能在两侧透过山谷的空隙看到一点湖面。门厅内有台阶引向山顶,可再通过步道及楼梯到达两个楼阁内的大包房。楼阁外侧有敞廊环绕,可以俯瞰远香湖全景。离湖最近的一个小体量掩蔽在正对宴会厅的山谷西侧,是一个略微下沉的大包房,里面可以站立着看到被抬高的平缓湖面。登上它的屋顶是一个绝好的近看湖面的平台,并通过天桥跨过山谷与宴会厅的屋顶花园及山顶步道相通。步道折向南穿过逐步面湖抬高的山坡中的一个下行的台阶门洞就是山谷东南口的另一个独立的大包房。这个包房前后有景,后方是山顶下来接着的一个植有两株大树的回廊内庭院,前方是配有四株大树和一个附属茶亭的半坡上的观景平台,正对西南方的大片湿地,取“平湖秋月”之意。 构造及材料措施也与建筑的整体策略一致,嵌入山体的底层体量的露出部分都是和挡土墙一致的衬砌的虎皮毛石墙,配有面向景观的大面积落地玻璃窗。而两个山坡上的钢结构楼阁的内胆是镜面不锈钢和落地玻璃窗,回廊外罩有钢龙骨支撑的不锈钢编织网,营造了通透、反射、朦胧的环境氛围。该项目工程造价约1840万元。
|
成为第一个评论的人
-
2016-02-17
-
2016-02-17
-
2016-02-17
-
2016-02-17
-
2016-02-17
